コンテンツに移動
ナビゲーションに移動
横浜の不動産のことなら、上大岡のアシストホームへ!
ホーム
会社案内
取扱中物件
実績紹介
不動産買取
不動産売却
お問合せ
サイトマップ
投稿
HOME
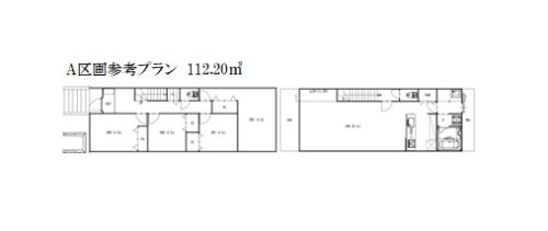
逗子市桜山6丁目売地2区画
桜山6丁目 参考プランA区画
/ 最終更新日 :
shonansp
桜山6丁目 参考プランA区画
Facebook
X
Bluesky
Hatena
Copy
MENU
ホーム
会社案内
取扱中物件
実績紹介
不動産買取
不動産売却
お問合せ
サイトマップ
PAGE TOP